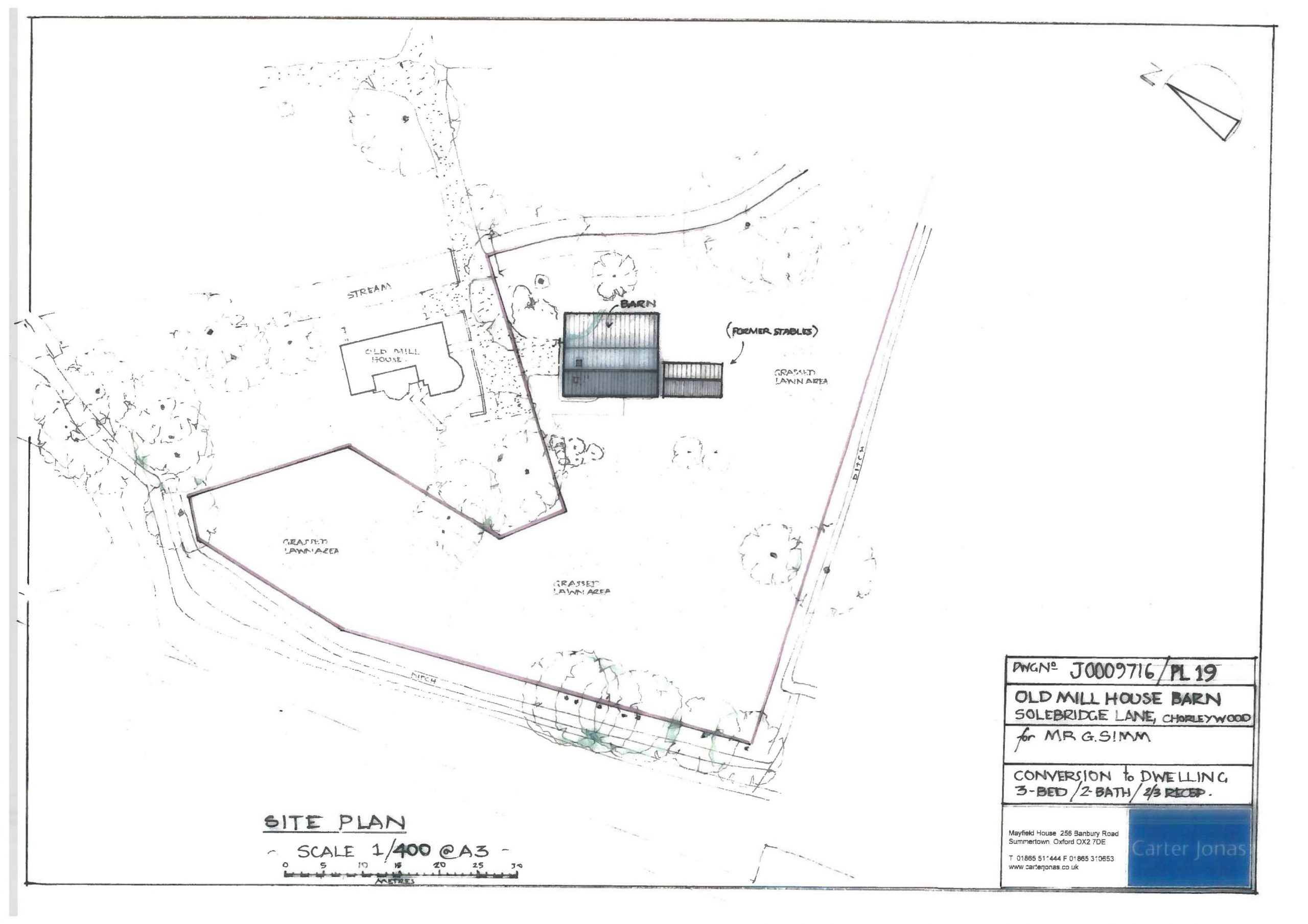
Simco Homes are pleased to announce planning permission has been granted for a single grade II listed barn located in the heart of Chorleywood within the Loudwater Conservation area.
The property sits on 1.5 acres neighbouring the river chess and benefits from this unique location.
The property with 3 bedrooms, open plan living, kitchen diner, and a detached double garage with studio.
Work is due to commence on the refurbishment and construction late July/August 2020. We are pleased to be involved in preserving this 16th century barn back to its original splendor.
Assisting with this project is McCurdy & Co who specialise in oak frame refurbishment. McCurdy & Co are well known for their involvement in the refurbishment of the Globe Theatre in London.










